-
15 St Georges Esplanade
St Peter Port
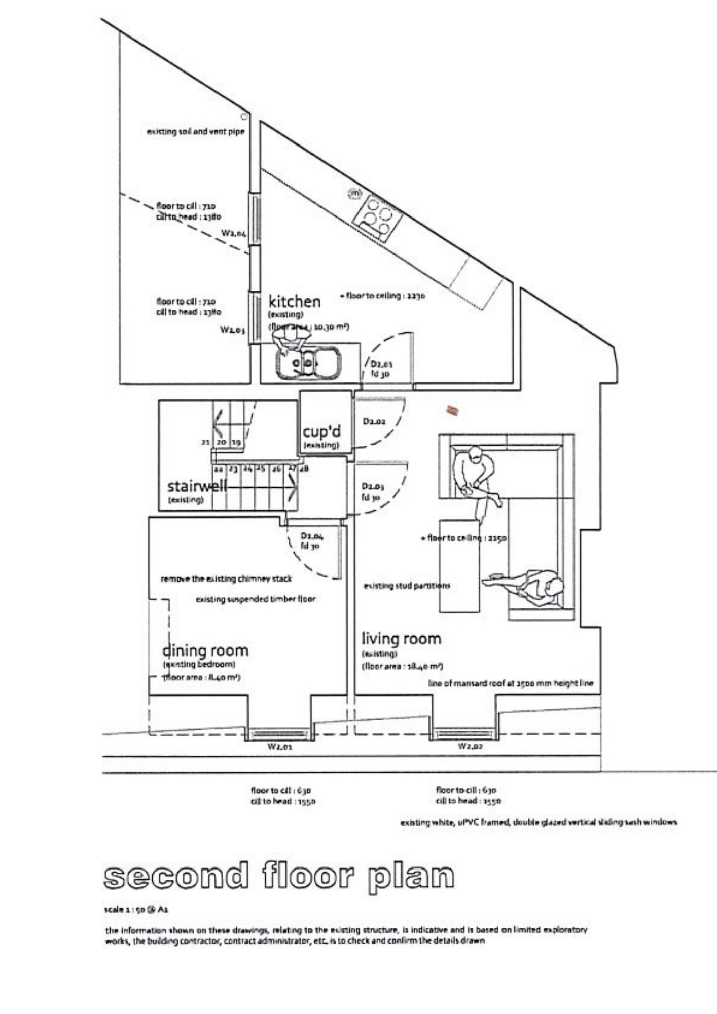
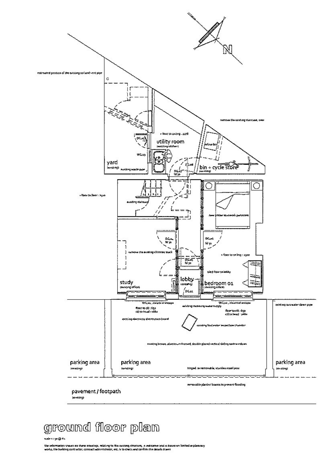
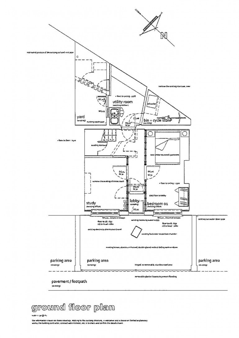
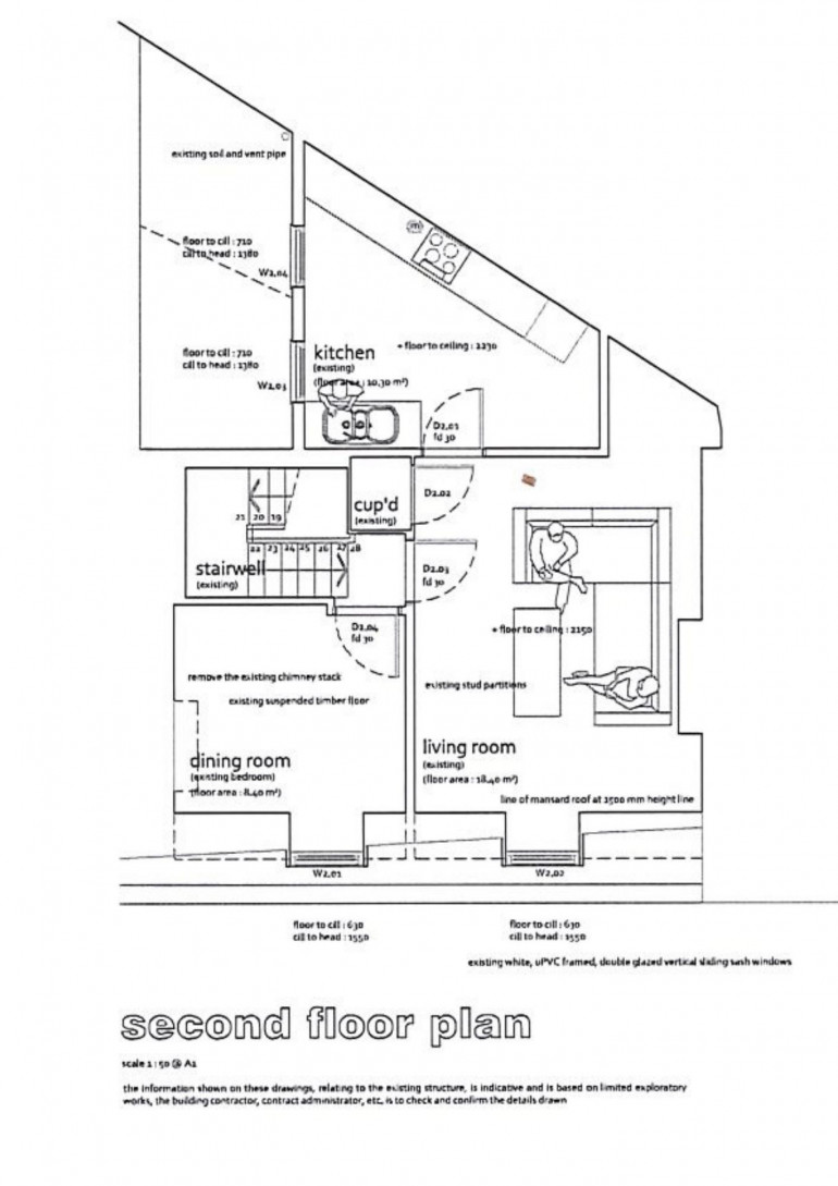
This conveniently located property is located on the outskirts of Town and offers the development potential to create a lovely 3 bed, 1 bathroom house with parking. Needing full renovation/development this property is suitable to cash buyers only but could create a wonderful home in a desirable location with spectacular sea views.
*Permission has now been granted to create a three bedroom house*
Property information
- Cash Buyers Only
- Sea Views
- Convienent Location
- Plans passed, 3 bedroom house, see below
- Full Renovation Required
- TRP: 146
Map | Get directions
-
- New
- Under Offer
£539,000 P'tite Bijou St Peter Port- Bedrooms 2
- Bathrooms 1
- Car Spaces 2
-
- New
- Sole Agent
£385,000 Apt 3 St Mark's House St Peter Port- Bedrooms 2
- Bathrooms 1
-
- Sole Agent
- Under Offer
£445,000 3 Infinity Gardens St Peter Port- Bedrooms 1
- Bathrooms 1
- Car Spaces 1
-
- Sold
Apartment 2 La Cigale St Peter Port- Bedrooms 1
- Bathrooms 1